不到90平的小戶型,經過全屋定制打造,給人的感覺首先就是時尚,加上全屋定制設計師對每個細節的打造,使最終效果都顯得和諧統一,精致的裝飾自在而又不失時尚。整體給人一種簡約典雅的氣質,又兼具東方內斂魅力。

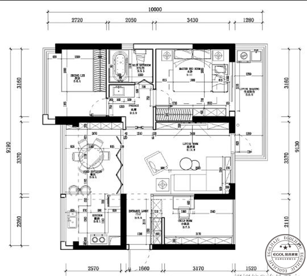
戶型圖
戶型方正,南北通透,實用面積90m²不到,沒有硬傷;唯一不足的就是只能一個洗手間。把洗手臺從衛生間里拿出來,形成干濕分區,并把梳妝臺和洗手臺合二為一,充分利用走廊空間。

玄關
下沉式玄關,進門第一眼就是一整面的柜子和雙開門,門上的小松鼠可以提起來但基本就是純裝飾;魚骨拼和大理石馬賽克共筑的溫柔,用踢腳線上半部分完成的拼接。

客廳
巨型收納柜長達6米多,猶如“大白墻”;地墊墊高三公分,沒有茶幾;不擔心娃在地上翻滾碰到頭。照明設計方面,采用冷暖色調搭配;整體色調統一且和諧。

廚房
廚房設計動線合理,配色和材質和細節都設計裝修到位。小黑磚和實木鐵皮的柜門很搭;不銹鋼臺面好清理,和怒銹鋼水槽完全沒有接縫。旁邊落地墻砌出一扇窗戶,黑色百葉窗,放下來,那感覺棒極了。

餐廳
和廚房“混為一談”的餐廳設計接近方形,滿足業主圓桌心愿,最多可以坐六個人。,兩張皮椅很提氣,一張棕色,一張墨綠,不用擔心油煙會污染真皮,用專門的皮具濕巾一周擦一次足矣。

臥室
主臥的色彩敲定順序是-墻紙-衣柜-窗簾??蛷d級別的燈放置在臥室里,和壁燈形成一套,把橘色絲絨窗簾照的發金光。

兒童房
沒有太多卡通形象的兒童房,簡單的床頭燈、簡單的床頭桌、簡單的床品,給簡單的boy。配色清新、老少居住皆宜。

陽臺
陽臺裝修配色黑白灰為主,上下層錯開,裝修成陽光房,使用黑色的生態板吊頂。
今天這期不到90平的小戶型設計就給大家介紹到這,設計師在設計上充滿了現代時尚的氣息,又通過全屋定制將小戶型打造成優雅、輕松居住空間。